Sede: via Narni 211 - Terni Tel: 0744 1925560
Home
Azienda
Chi siamo
Servizi
Progettazione
Servizi tecnici per le imprese
Progetti
Certificazioni
Contatti
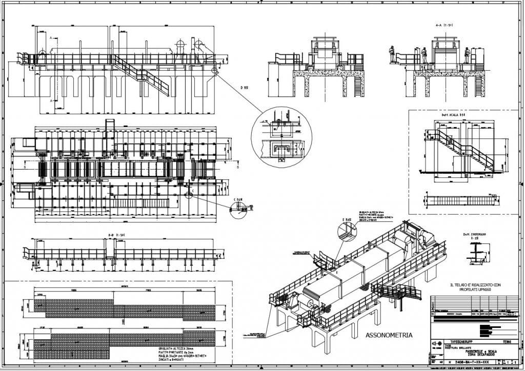
REVERSE ENGINEERING LINEA DI TRATTAMENTI BA
Rilievi e restituzione grafiche linee di trattamenti BA2 stabilimento TK di Torino
Home
REVERSE ENGINEERING ...
Rilievi e restituzione grafiche linee di trattamenti BA2 stabilimento TK di Torino per il suo totale trasferimento e adattamento allo stabilimento di Terni.
Previous
Next
REVERSE ENGINEERING LINEA DI TRATTAMENTI BA
Chiama
Scrivi
Mappa