Progettazione strutturale e indicazione carichi in fondazione nuove cappe di aspirazione Acc Asea LF1 e LF2
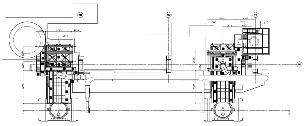
Impianto costituito da due cappe di aspirazione fumi semoventi su due binari.
Il progetto ha previsto finecorsa di posizione e di accoppiamento per la cappa, encoder a filo per rilevare la posizione della cappa, sensori di prossimità montati sugli ingranaggi per riconoscere l’eventuale rottura della catena ed elettro-serrature sui cancelli per accesso alla cappa. Il tutto è pilotato da plc e può essere comandato tutto da un pannello operatore con touch-screen.
Servizi tecnici relativi alla progettazione esecutiva di strutture metalliche, impiantistica oleodinamica, elettrica ed opere civili per la realizzazione delle nuove cappe di aspirazione mobili per scorifica sugli impianti LF1 e LF2 nel reparto PRODUZIONE ACCIAIO.
Verifiche delle strutture ex novo e sviluppo delle modifiche da apportare alle strutture esistenti per l’applicazione dei nuovi carichi.
Servizi tecnici relativi alla progettazione esecutiva di strutture metalliche, impiantistica oleodinamica, elettrica ed opere civili per la realizzazione delle nuove cappe di aspirazione mobili per scorifica sugli impianti LF1 e LF2 nel reparto PRODUZIONE ACCIAIO.
Verifiche delle strutture ex novo e sviluppo delle modifiche da apportare alle strutture esistenti per l’applicazione dei nuovi carichi.








