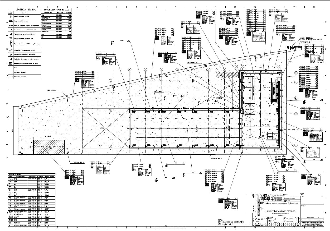
Progettazione impianti elettrici capannone
Sviluppo del progetto esecutivo degli impianti elettrici a servizio del
capannone industriale di nuova costruzione.
Esecuzione di calcoli per il dimensionamento delle cabine elettriche MT-BT e delle linee BT di alimentazione delle utenze (Potenza Stimata 1 MW)
Fornitura delle relazioni di calcolo delle reti MT e BT
Sviluppo dei disegni planimetrici per l’indicazione dei percorsi di alimentazione MT e BT, con distinte materiali.
Sviluppo dei disegni unifilari dei quadri elettrici MT e BT con distinte materiali.
Elaborazione computi metrici estimativi



